About
About
Staff
Equity and Diversity Policy
Programs
Consumer Housing Programs
The HomeOwnership Center
PATHWAY PROGRAM
Homes for Sale
Homes for Rent
Home Repair Programs
Real Estate Development Programs
Multi Family Developments
Single Family Developments
Senior Rental Developments
Home Connector
YouthBuild
Properties
Homes For Sale
Homes for Rent
Resources
Area Median Income Guidelines
Partners & Links
Speakers
News
News
Events
Contact
For Sale
$170,000
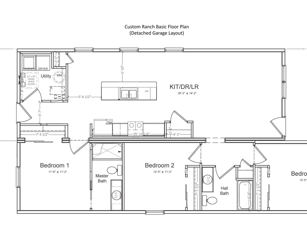
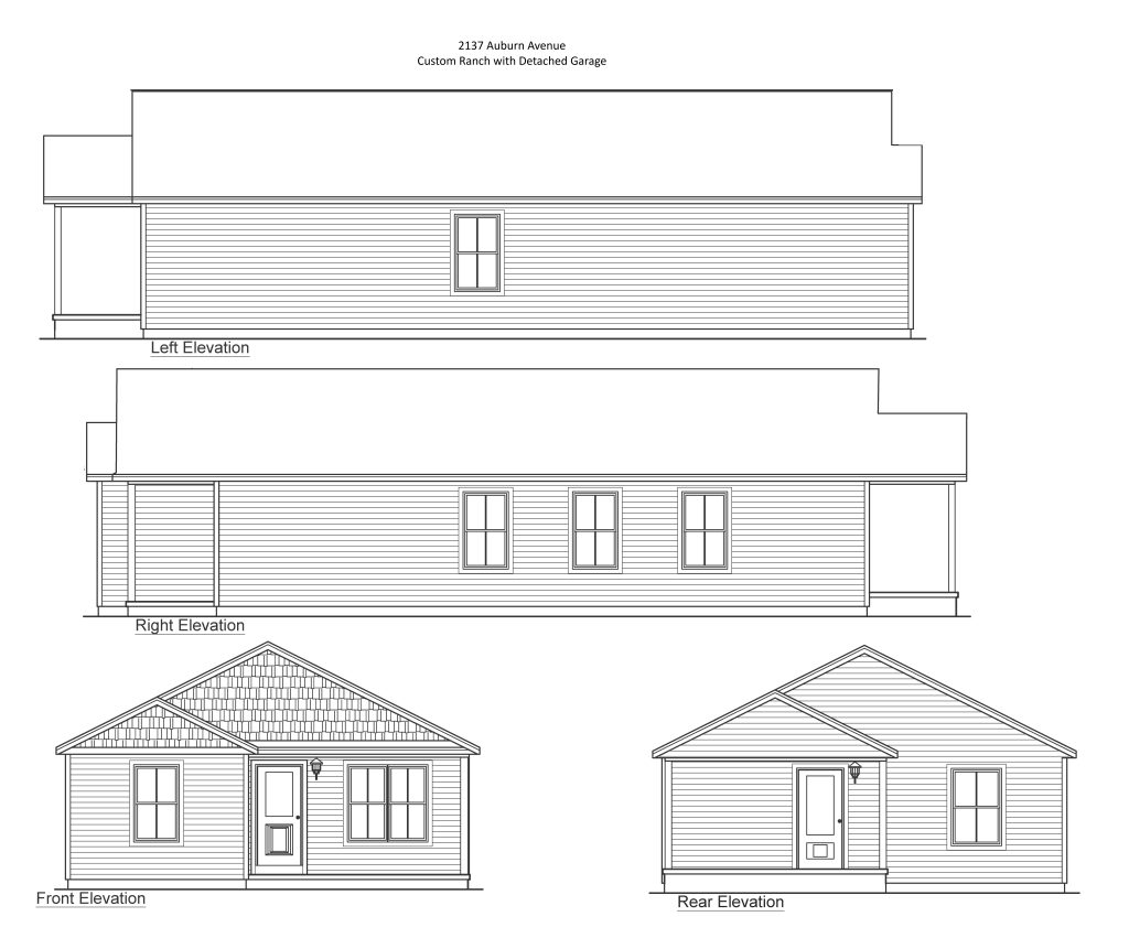
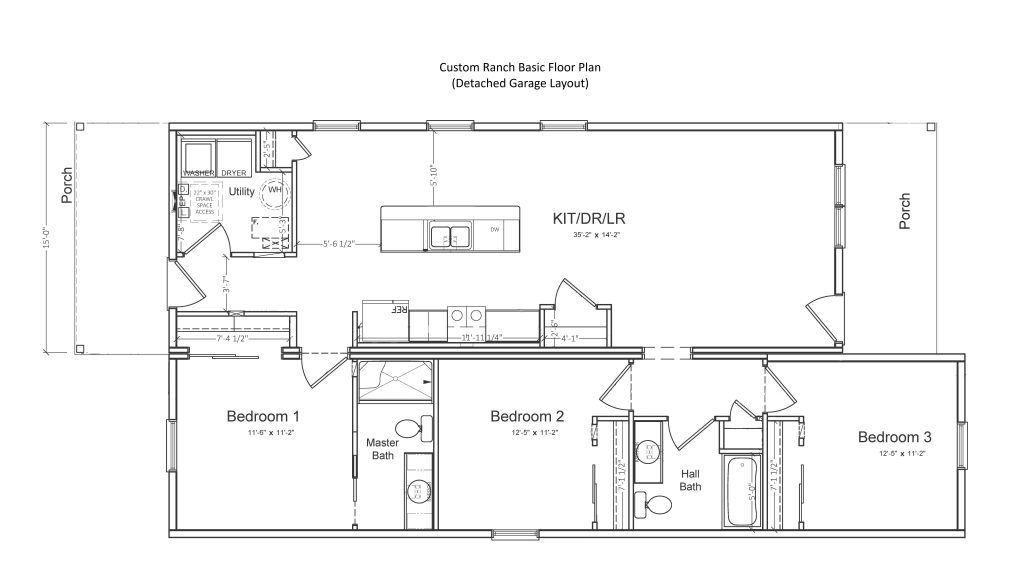
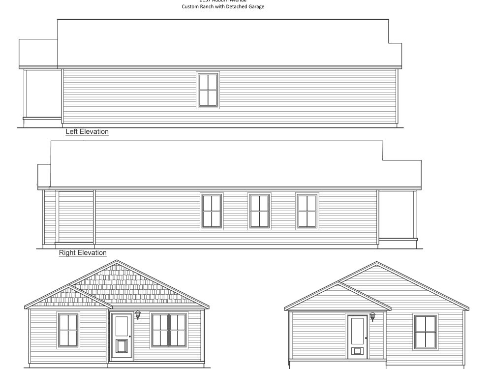
2137 Auburn
Dayton, OH, 45406
3 bed |
2 bath |
1,288 sqft
View 7 photos
View 7 photos
View 7 photos
View 7 photos
View 7 photos
View 7 photos
View 7 photos
More Info
New construction!
Energy efficient
1,288 Square feet
3 bedrooms, 2 bathrooms
Front and back porches
Home warranty
Kitchen appliances – refrigerator, range, microwave, dishwasher included
1 ½ car detached garage
View on Google Maps
2137 Auburn, Dayton, OH, 45406
Features
Price:
$170,000
Bedrooms:
3
Bathrooms:
2
Type:
Status:
Home Size:
1,288 sqft
Lot Size:
acres
Year Built:
2025
MLS/Source ID:
Zip:
45406
Income Limit:
Yes
Down Payment Assistance:
Copyright © 2026 County Corp
X
MENU
About
About
Staff
Equity and Diversity Policy
Programs
Consumer Housing Programs
The HomeOwnership Center
PATHWAY PROGRAM
Homes for Sale
Homes for Rent
Home Repair Programs
Real Estate Development Programs
Multi Family Developments
Single Family Developments
Senior Rental Developments
Home Connector
YouthBuild
Properties
Homes For Sale
Homes for Rent
Resources
Area Median Income Guidelines
Partners & Links
Speakers
News
News
Events
Contact